戸建リフォーム 豊田市K様邸
たまたま仕事でリビルドデザインを訪れたK様。
受付でいきなり
「あのう、こちらでリフォームってやってもらえるんですか?」
「もちろん!」
と、これが始まりでした。
少し前から、自宅に職場 兼 自分専用空間を作ってみたいと考えていたようです。
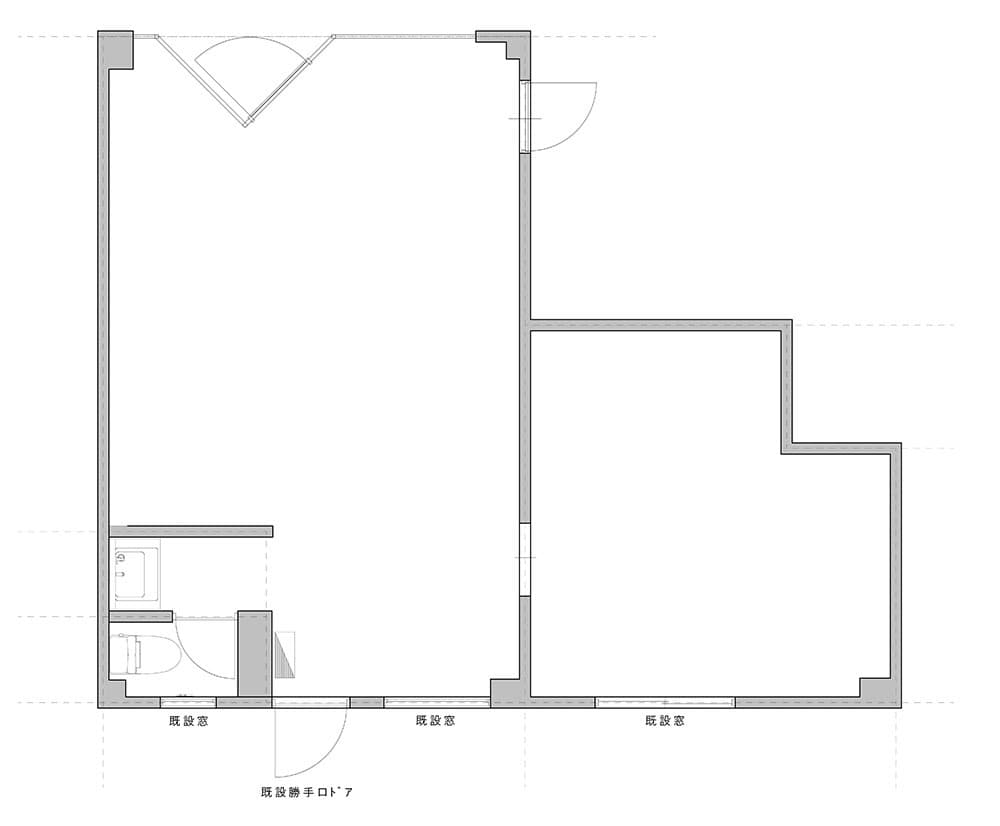
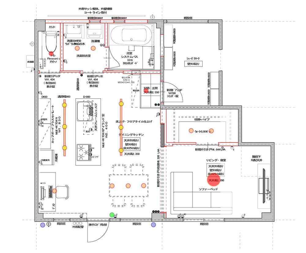
3階建ての1階部分 約28畳に、
ワークスペース・キッチン・リビング・バスルーム・トイレを贅沢に完備。
おしゃれな1LDKマンションのような仕上がりになりました。
内装と家具の雰囲気がしっくりくるのは、何よりもK様の好みがはっきりしていたから。
ご要望をもとに打合せを重ねた結果、ブルーを基調とした仕事と趣味の空間が素敵に完成しました。
LDK
 
リビング
 
ダイニング
キッチン
 
玄関、洗面、バス、トイレ
平面図 Before~After
 
 
 
 
 
 
 
 
 
 
 
 
 
 
 
 
 
 
 
