戸建リフォーム田原市N様邸

戸建リフォーム田原市N様邸


家族が集うー回遊動線のLDKの家

程よい解放感のキッチンスペース

お客様のご要望


台所のスペースが暗いので明る<したい。
廊下の段差をなくしてバリアフリーにしたい。
浴室がタイルで寒いのでユニットバスにしたい。
居間が寒いので改善してほしい。

リビング スライドパーティション開閉

After

After

・天井まである半透明の引戸の採用で、キッチンとの程よいセパレート感を作り出しました。
・鮮やかな赤色のシステムキッチンが、空間を明る<引き締めています。
・壁面TV収納はFAX機器や日用品の収納にも大活躍、室内にものがあふれなくなりました。

キッチン スライドパーティション開閉

アフター

・引戸を開放すると、リビングからの視線を適度に遮るが、南北の風が良く通る回遊動線が出来上がります。
・テーブル横の壁は耐震耐力壁になっております。

インナーサッシと壁面TV収納

アフター

 
・南面の掃出し窓はインナーサッシを採用し断熱と国道からの遮音に配慮しました。
・壁を90センチ分裏側玄関通路へ移動、幅2700のTV収納を設置し小物整理に役立ちました。

手洗いカウンター付きトイレ、洗面収納スペース

After

 
・手洗い器が付便利になったトイレ。
・洗面所脇に洗剤や掃除道具、洗濯物等を置く可動棚を設置しました。
 

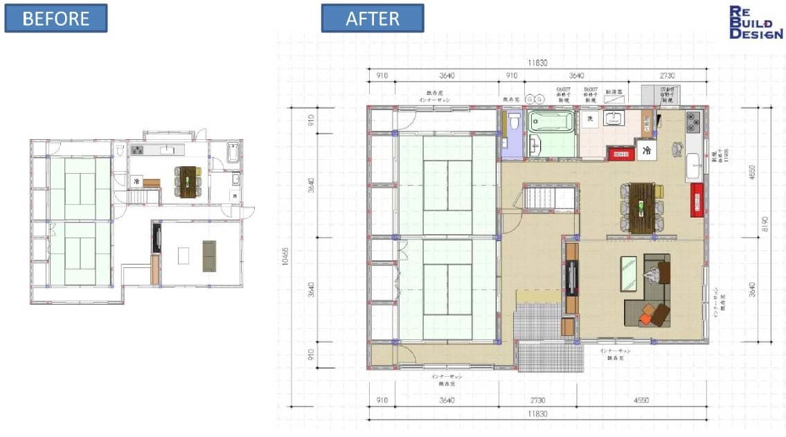
平面図 Before~After

平面図After

 
洗面、浴室の水廻りを北側に、キッチンを東側の明るい場所へ移動。
そして東西の通路をなくしリビングスペースとつなげ回遊動線を持ったLDKをつくりました。