戸建リフォーム名古屋市Y様邸

  • TOP
  • >
  • 施工例
  • >
  • 戸建リフォーム名古屋市Y様邸

戸建リフォーム名古屋市Y様邸


大人の寛ぎ空間、セカンドリビングのある家

寝室に隣接した洋間2室が華麗に変身

お客様のご要望


寝室横の使っていない2部屋をうまく活用したい
照明は間接照明で雰囲気をよく仕上げてほしい
セカンドリビングとして家具の提案がほしい
仕事の残りを片付けるためのスペースも作りたい

01-2.jpg 02_20180416181332827.jpg 03_20180416181332850.jpg 04_20180416181332830.jpg

セカンドリビング全景

After

After

・寝室に隣接したセカンドリビング全景、L型に囲まれたお気に入りの自分空間が出来ました。
・間接照明のライティングは、好みのシーンに応じて選択できるようスイッチを分けてあります。
・西面3Fの部屋なので窓は小さめにし、壁内に断熱材をしっかり充填、寒さ暑さ対策も完璧です。

セカンドリビング~ミニキッチン

After

・正面収納スペース内部は、機能的な組合せ棚でハンガーパイプやタンスも内蔵しています。
・L型に囲まれた自分空間、ブラックレザーが空間を引き締めています。

L型カウンター~大型TVボード 

After

 
・間接照明に囲まれたオーーディオ空間、65インチTV+7.1CHサラウンドシステムの快適空間です。
・ソファー背面カウンターは、チークのサイドボードに合わせて塗装しご提案しました。

キッチン・カウンター~洗面・トイレ 

After

 
・一日の仕事の残りをこのカウンターで少しくつろぎながら片付けたりするシーンも想定、コーヒーや軽食調理用にミニキッチンも採用しました。
・洗面所とトイレは施主様の好みのダークで落ち着ける配色になりました。

グランドハイトドア~開放的な天井高一杯のドア

After

 
・リビング引戸にグランドハイトドア (H2400) 鏡面仕上げを採用、高級感あるエントランスに仕上がった
・階段から大きな荷物を出し入れする際にも力を発揮します。

スライドインドア~折戸タイプドア

After

 
・外開きの既存寝室ドアとの位置関係で、中折れ式ドアを採用しドア同士の衝突を防ぎました。
・デザインはリビング入口に合わせてガラススリットでコーディネート。

セカンドリビング全景

After

 
・2部屋の間仕切り壁を撤去し、間接照明の映えるセカンドリビングに変身。
・3Fのため西日対策で窓を小さくし、壁内にグラスウールをしっかり充填し断熱対策も万全です。
・エアコンはすっきりと天井に埋め込みました。

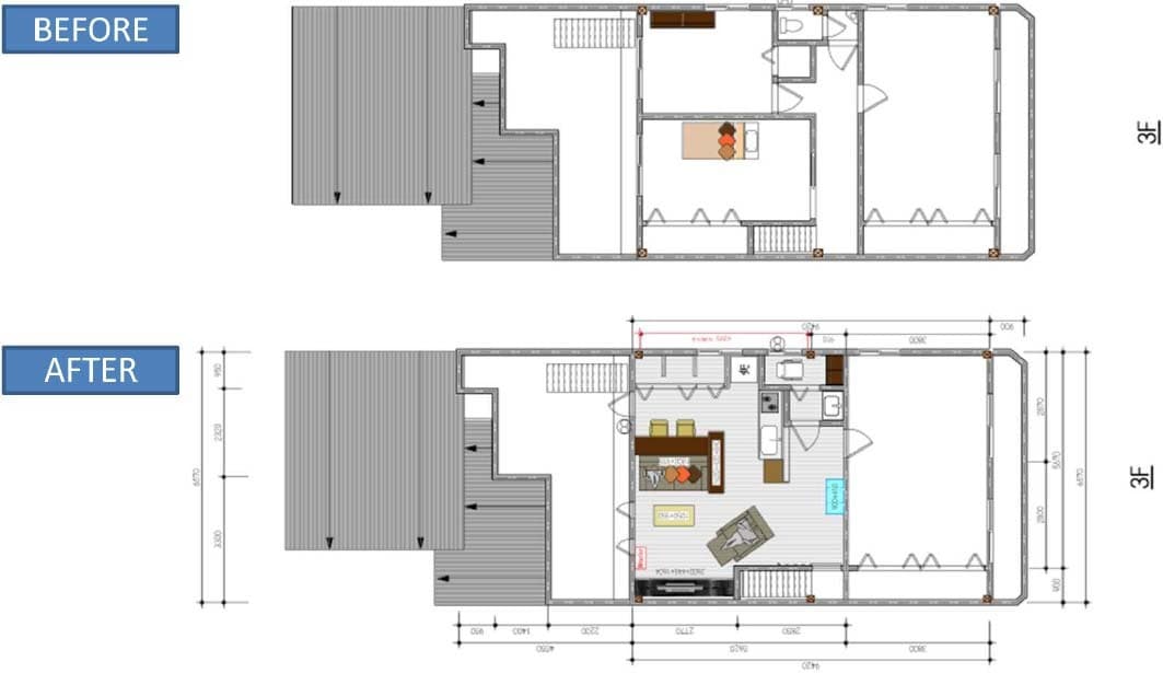
平面図 Before~After

After

 
・2部屋の間仕切り壁を撤去し、間接照明の映える寝室に隣接したセカンドリビングに変身。
・3Fのため西日対策で窓を小さくし、壁内にグラスウールをしっかり充填し断熱対策も万全です。
・仕事の残務をこなすスペースでもあり、ミニキッチンも設置便利なスペースになりました。